KEYFACTS:
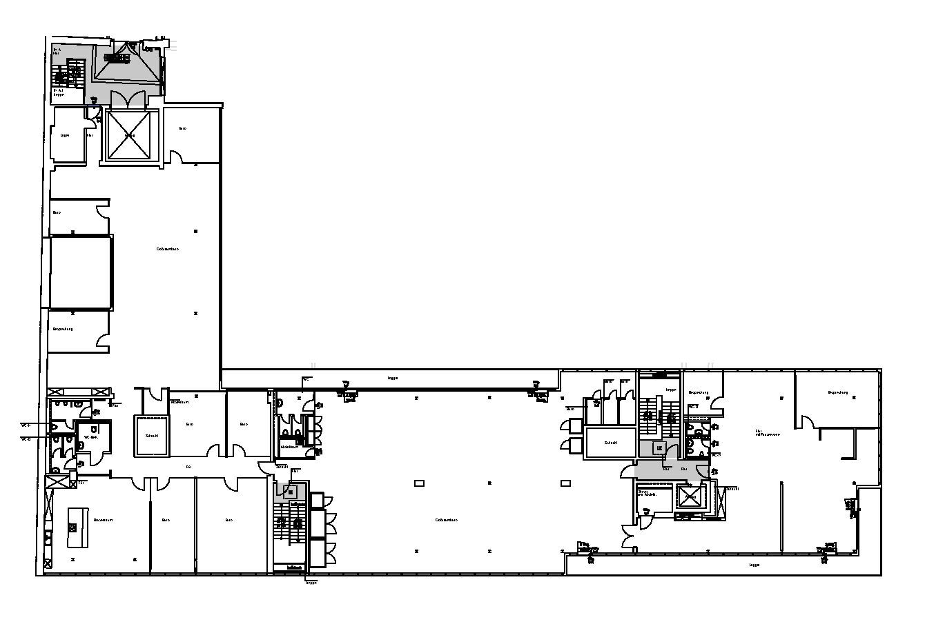
- Gewerbefläche mit ca. 1.133,58 m² exklusiver Nutzfläche im 4. Obergeschoss gelegen
- Terrasse zur exklusiven Nutzung
- Teilklimatisierung
- Parkettboden
- bodentiefe Fenster
- Beleuchtung und Steckdosen vorhanden
- WiredScore PLATINUM Zertifizierung
- teilweise Glastüren vorhanden
- außenliegender Sonnenschutz
HISTORIE:
Fast 125 Jahre Architekturgeschichte treffen in den AQUA-Höfen aufeinander. Ein klassischer, denkmalgeschützter Gewerbehof erbaut zwischen den Jahren 1893 und 1898; dazu ein funktionaler Produktionskomplex aus den 1970er Jahren, saniert und umgebaut von 2011 bis 2012. Mit diesem faszinierenden Mix wurden die AQUA-Höfe zum Vorreiter und Pionier des neuen Kreuzberg.
In den AQUA-Höfen vollziehen wir einen besonderen Spagat. Wir schaffen durch unterschiedlichste Flächen für Gründer als auch Etablierte eine ideale Spielfläche für unkonventionelle Ideen. Variable Arbeitslandschaften, die Einzel- und Großraumbüros, Werkstätten, Studios und Ateliers ermöglichen. Und dies alles mit einer technischen Ausstattung und einem Service-Angebot, das schlicht erstklassig ist.
Von Anfang an waren die AQUA-Höfe eine der wichtigsten Keimzellen für Kreuzberger Kreative und Gründer. Dies wird auch in Zukunft so bleiben. Die flexiblen Nutzungsmöglichkeiten der Flächen bieten immer wieder ideale Voraussetzung für die unterschiedlichsten Geschäftsideen. Dazu kommen zahlreiche durchdachte Service-Angebote: Das Hofnetz, unser eigenes Glasfasernetz, sichert jedem Mieter eine leistungsstarke IT-Infrastruktur. Und nicht zuletzt ist der Hofmeister als Ansprechpartner ständig vor Ort.
Attraktive Gewerbefläche in den Aqua Höfen Berlin – Ihr neuer Standort für Erfolg!
Lobeckstr. 30-35, Ritterstr. 24-27
10969 Berlin / Kreuzberg
10969 Berlin / Kreuzberg
Der Alexanderplatz, die Hackeschen Höfe, Unter den Linden, die Friedrichstraße und der Potsdamer Platz mit ihren Museen, Restaurants, Opernhäusern, Kinos und Geschäften sind von der historischen Luisenstadt, in deren westlichem Teil des Gewerbehofes gelegen ist, nur maximal zwei Kilometer Luftlinie entfernt.
Der Hof befindet sich in hervorragender zentraler und absolut ruhiger Lage am Moritzplatz im Bezirk Kreuzberg an der Grenze zum Bezirk Mitte. Die City-Ost erreicht man in ca. zehn Autominuten. Die U-Bahnhöfe Moritzplatz (U8) und Prinzenstraße (U1) sind fußläufig erreichbar. Zahlreiche Restaurants und Café sind in unmittelbarer Nähe.
Der Hof befindet sich in hervorragender zentraler und absolut ruhiger Lage am Moritzplatz im Bezirk Kreuzberg an der Grenze zum Bezirk Mitte. Die City-Ost erreicht man in ca. zehn Autominuten. Die U-Bahnhöfe Moritzplatz (U8) und Prinzenstraße (U1) sind fußläufig erreichbar. Zahlreiche Restaurants und Café sind in unmittelbarer Nähe.
Ausstattung
Die angebotene Fläche in den AQUA-Höfen in Berlin-Kreuzberg bietet Ihnen die Möglichkeit, die Fläche beispielsweise als Büro zu nutzen.Die Möglichkeit der Raumtrennung, durch bspw. Glaswände auf Kosten des Mieters, sind in Abstimmung mit dem Vermieter optional darstellbar.
Sonstiges
Wir freuen uns auf Ihren Anruf. Weitere Angebote auf Nachfrage. Änderungen vorbehalten, für den Inhalt des Mietverhältnisses ist allein der geschlossene Mietvertrag nebst Anlagen verbindlich.Tour anfragen
Planen Sie mit uns eine Tour durch den Gewerbehof.
Nicht das, was Sie suchen?
Entdecken Sie noch mehr Büros in Berlin Friedrichshain-Kreuzberg