+49 30 3909 3030
Wir freuen uns auf Ihren Anruf!

Kontakt

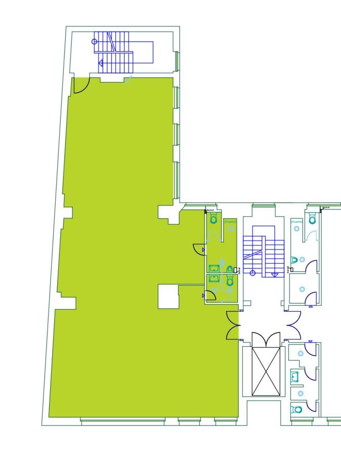
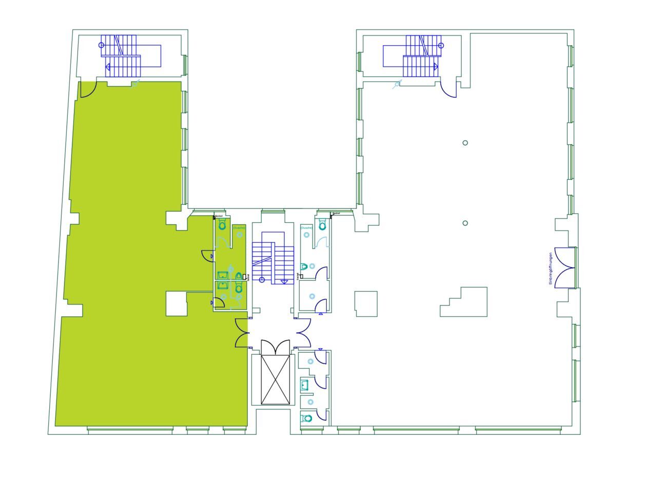
Ihr neues Büro im jungen Zentrum Berlins / Kreuzberg – ca. 186 m²

Adalbertstraße 8
10999 Berlin / Kreuzberg
KEYFACTS:
• ca. 186,15 m², loftartig im 4. OG gelegen / Altbau
• viel Tageslicht
• innenliegende getrennte WC-Anlagen
• Fahrradstellplätze im Hof
• Wachschutz
• Highspeed-Internet möglich
• Zugang zu Lastenaufzügen vorhanden
• peux à peux Umsetzung eines digitalen Wegeleitsystems
• Betreuung des Objektes durch festen Hausmeister

HISTORIE:
Errichtet wurde der helle Klinkerbau 1859/1906 vom Architekten Wilhelm Hellwig. Nachdem er 1992 aufwendig saniert worden war, wurde er durch fünfgeschossige Bauten ergänzt.

Heute werden die über 33 Mieteinheiten mit 70 bis 400 Quadratmetern Fläche als Office, Loft, Geschäftsraum oder Werkstatt genutzt. Geschäftsleute, Handwerker und Kreative aus dem Bereich Architektur, Film und Mode haben sich hier aus gutem Grund niedergelassen: Sie schätzen den Kiez wegen seiner lebendigen, unkonventionellen Atmosphäre.
Adalbert-Höfe der GSG Berlin, Urheber: Amadé Hölzinger | © GSG Berlin GmbH
Die Adalbertstraße ist ein zentraler Mittelpunkt von Berlin-Kreuzberg, wo Sie zahlreiche Geschäfte und Dienstleistungen vorfinden. Rund um die Oranienstraße und das Kottbusser Tor gibt es verschiedene Einkaufsmöglichkeiten und internationale Gastronomie. Den Potsdamer Platz oder die exklusiven Geschäfte der Friedrichstraße erreichen Sie in ca. 10 Autominuten.

Durch die guten Verkehrsanbindungen verfügt der Gewerbehof über eine hohe Lagegunst. Die City-Ost ist in ca. 15 Autominuten über die Oranienstraße erreichbar. Anschluss an den öffentlichen Nahverkehr hat man vom Gewerbehof nach ca. 2 Fußminuten mit dem U-Bahnhof Kottbusser Tor und verschiedenen Buslinien.

Ausstattung

Diese großzügige Fläche von ca. 186,15 m² befindet sich im 4. Obergeschoss eines stilvollen Altbaus und besticht durch ihre loftartige Raumgestaltung. Dank großer Fensterflächen ist die Immobilie lichtdurchflutet und schafft eine angenehme Arbeits- oder Wohlfühlatmosphäre.

Die Räumlichkeiten verfügen über getrennte, innenliegende WC-Anlagen, was zusätzlichen Komfort bietet. Für die Anreise mit dem Fahrrad stehen im Hof sichere Fahrradstellplätze zur Verfügung. Zudem sorgt ein Wachschutz für die Sicherheit der Immobilie.

Highspeed-Internet ist ebenfalls möglich, sodass Sie flexibel und effizient arbeiten können.

Bei Interesse stehe ich Ihnen gerne für weitere Informationen oder eine Besichtigung zur Verfügung!

Tour anfragen

Planen Sie mit uns eine Tour durch den Gewerbehof.

Tour anfragen

Ganz schön gut:
Die Adalbert-Höfe

Sie wollen mehr über den Gewerbehof und unsere Vorteile erfahren?

Gewerbehof entdecken
Adalbert-Höfe der GSG Berlin, Urheber: Amadé Hölzinger | © GSG Berlin GmbH

Kontakt

Annika Albrecht - Vermietungsteam
vermietung@gsg.de
+49 30 39093055

© Copyright 2023 GSG Berlin GmbH.