+49 30 3909 3030
Wir freuen uns auf Ihren Anruf!

Kontakt

Open Space mit viel Potenzial! Tolle Fläche in Berlin-Kreuzberg

Adalbertstraße 8
10999 Berlin / Kreuzberg
KEYFACTS:
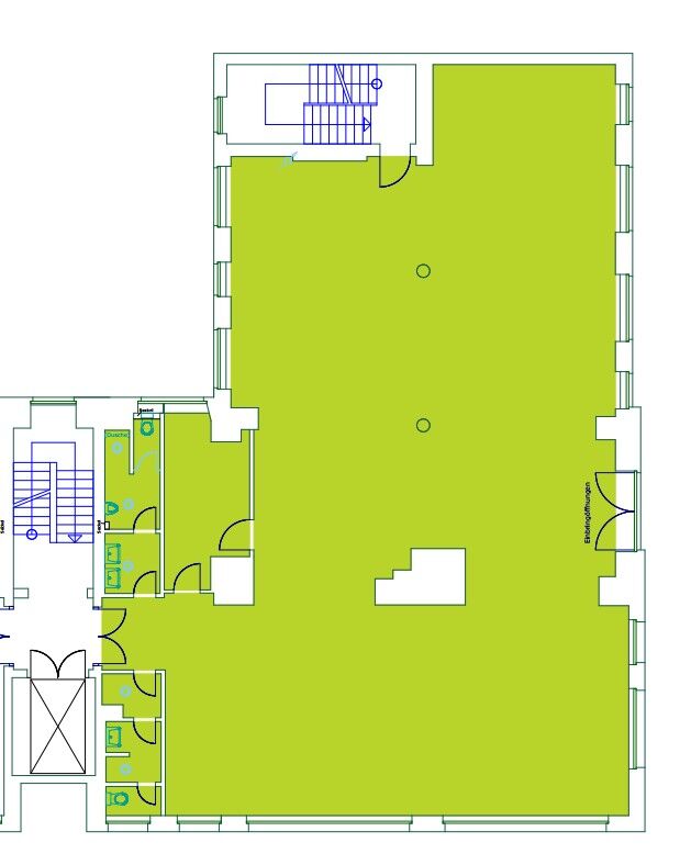
• ca. 300 m² im 2. OG gelegen
• viel Tageslicht für eine optimale Arbeitsatmosphäre
• innenliegende getrennte WC-Anlagen
• Fläche kann mieterseits individuell hergerichtet werden
• viele Fahrradstellplätze im Hof
• Highspeed-Internet möglich
• Zugang zu Lastenaufzügen vorhanden
• peux à peux Umsetzung eines digitalen Wegeleitsystems
• Betreuung des Objektes durch festen Hausmeister

HISTORIE:
Errichtet wurde der helle Klinkerbau 1859/1906 vom Architekten Wilhelm Hellwig. Nachdem er 1992 aufwendig saniert worden war, wurde er durch fünfgeschossige Bauten ergänzt.

Heute werden die über 33 Mieteinheiten mit 70 bis 400 Quadratmetern Fläche als Office, Loft, Geschäftsraum oder Werkstatt genutzt. Geschäftsleute, Handwerker und Kreative aus dem Bereich Architektur, Film und Mode haben sich hier aus gutem Grund niedergelassen: Sie schätzen den Kiez wegen seiner lebendigen, unkonventionellen Atmosphäre.
Adalbert-Höfe der GSG Berlin, Urheber: Amadé Hölzinger | © GSG Berlin GmbH
Die Adalbertstraße ist ein zentraler Mittelpunkt von Berlin-Kreuzberg, wo Sie zahlreiche Geschäfte und Dienstleistungen vorfinden. Rund um die Oranienstraße und das Kottbusser Tor gibt es verschiedene Einkaufsmöglichkeiten und internationale Gastronomie. Den Potsdamer Platz oder die exklusiven Geschäfte der Friedrichstraße erreichen Sie in ca. 10 Autominuten.

Durch die guten Verkehrsanbindungen verfügt der Gewerbehof über eine hohe Lagegunst. Die City-Ost ist in ca. 15 Autominuten über die Oranienstraße erreichbar. Anschluss an den öffentlichen Nahverkehr hat man vom Gewerbehof nach ca. 2 Fußminuten mit dem U-Bahnhof Kottbusser Tor und verschiedenen Buslinien.

Ausstattung

Arbeiten und leben, dazu noch in einem inspirierenden Umfeld voller Gegensätze – diese Dinge lassen sich in diesem Gewerbehof der GSG in der Adalbertstraße in Berlin-Kreuzberg aufs Wunderbarste verknüpfen: So kann man türkische Spezialitäten der dort angesiedelten Geschäfte, Restaurants oder Bäckereien genießen, während drum herum ein ambitioniertes Szenepublikum agiert.

Der Hof wurde in diesem Jahr auch noch durch zwei moderne Neubauten ergänzt (Schließung von zwei Baulücken). Auch wurden/werden die Außenanlagen durch farbige Akzente, einladendes indirektes Licht in den Durchgängen, maximale Nutzfläche unter den Bäumen, bodentiefe Beete und Sitzmöglichkeiten für Mieter und Besucher aufgewertet.

Sonstiges

Wir freuen uns auf Ihren Anruf. Weitere Angebote auf Nachfrage. Änderungen vorbehalten. Für den Inhalt des Mietverhältnisses ist allein der geschlossene Mietvertrag nebst Anlagen verbindlich.

Tour anfragen

Planen Sie mit uns eine Tour durch den Gewerbehof.

Tour anfragen

Ganz schön gut:
Die Adalbert-Höfe

Sie wollen mehr über den Gewerbehof und unsere Vorteile erfahren?

Gewerbehof entdecken
Adalbert-Höfe der GSG Berlin, Urheber: Amadé Hölzinger | © GSG Berlin GmbH

Kontakt

Annika Albrecht - Vermietungsteam
vermietung@gsg.de
+49 30 39093055

© Copyright 2023 GSG Berlin GmbH.