+49 30 3909 3030
Wir freuen uns auf Ihren Anruf!

Kontakt

Modernes Büro sucht neuen Mieter in Berlin-Tempelhof / Meetingräume aus Glas / Parkett

Geneststraße 5
10829 Berlin / Schöneberg
KEYFACTS:
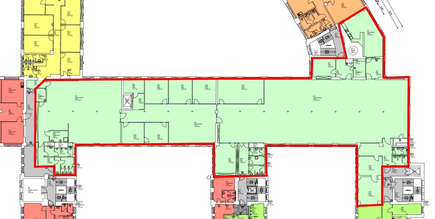
- Bürofläche mit ca. 1.296,32 m²
- unschlagbare Nettokaltmiete von 18,00 EUR/m²
- Holzboden (Stäbchen-Parkett)
- abgetrennte Besprechungsräume aus Glas
- mehrere abgetrennte Büroräume
- repräsentativer Eingangsbereich
- große moderne Küche
- Open Space Bereich
- außenliegende Horizontal-Lamellen dreigeteilt mit elektrischer Bedienung
- WiredScore Gold Zertifizierung

HISTORIE:
Ursprünglich war der Gebäudekomplex zur Produktion elektrischer Nachrichtengeräte und Rohrpostanlagen für die Firma Mix & Genest 1905/1908 errichtet worden. 1973 übernahm die GSG Berlin den Gewerbehof und sanierte den gesamten Hof aufwendig. Erweitert wurde der Komplex 2006 durch den Dachgeschossaufbau.

Der GSG-Hof Geneststraße hat fünf Höfe, die teils unterkellert sind. Die Zufahrt geschieht über drei Torzufahrten, es gibt fünf Lastenaufzüge sowie zwei Personenaufzüge.
In jeder Etage befinden sich separate Damen- und Herrentoiletten. Durch angelegte Wasseranschlüsse und Fliesenspiegel lassen sich bei Bedarf Teeküchen einrichten.
GSG-Hof Geneststraße
In der Geneststraße 5 haben sich Unternehmen der verschiedensten Branchen eingefunden. Sie wissen warum, denn die Geneststraße liegt direkt an der Autobahnauffahrt Sachsendamm. Zum Bahnhof Südkreuz sind es nur 5 Fußminuten. Zum Potsdamer Platz gelangt man mit der Bahn in 7 Minuten und ca. 15 Minuten mit dem Auto.

In weiterer Nachbarschaft befindet sich Möbel Höffner und das IKEA-Einrichtungshaus Berlin-Tempelhof am Sachsendamm/Alboinstraße. Im Umfeld des Verkehrsknotenpunkts Bahnhof Südkreuz entstehen zudem eine Vielzahl von neuen Gebäuden und Geschäften. Einzelhandel, Gaststätten und Ärzte befinden sich schon heute in der anliegenden Haupt- und Dominicusstraße.

Ausstattung

Diese moderne Bürofläche überzeugt nicht nur durch ihre hochwertige Ausstattung, sondern auch durch ein herausragendes Preis-Leistungs-Verhältnis mit einer unschlagbaren Nettokaltmiete von nur 18,00 EUR/m². Der stilvolle Holzboden in Form von Stäbchen-Parkett verleiht den Räumen eine warme, einladende Atmosphäre und unterstreicht den hochwertigen Gesamteindruck.

Großzügige Open-Space-Bereiche bieten maximale Flexibilität für moderne Arbeitskonzepte, während verglaste, separat abgetrennte Besprechungsräume ideale Voraussetzungen für diskrete Meetings oder konzentrierte Teamarbeit schaffen. Der repräsentative Eingangsbereich sorgt bereits beim Betreten für einen professionellen ersten Eindruck und unterstreicht den Anspruch an ein hochwertiges Arbeitsumfeld.

Abgerundet wird das Raumangebot durch eine großzügige, modern ausgestattete Küche, die nicht nur funktional, sondern auch ein beliebter Treffpunkt für informelle Gespräche und Pausen ist. Diese Bürofläche bietet die perfekte Kombination aus Ästhetik, Funktionalität und Wirtschaftlichkeit – ein optimaler Standort für Unternehmen, die Wert auf ein inspirierendes Arbeitsumfeld legen.

Sonstiges

Wir freuen uns auf Ihre Kontaktaufnahme. Weitere Angebote gern auf Nachfrage. Änderungen vorbehalten. Für den Inhalt des Mietverhältnisses ist allein der geschlossene Mietvertrag nebst Anlagen verbindlich.

Tour anfragen

Planen Sie mit uns eine Tour durch den Gewerbehof.

Tour anfragen

Ganz schön gut:
Der GSG-Hof Geneststraße

Sie wollen mehr über den Gewerbehof und unsere Vorteile erfahren?

Gewerbehof entdecken
GSG-Hof Geneststraße

Kontakt

Annika Albrecht - Vermietungsteam
vermietung@gsg.de
+49 30 39093055

© Copyright 2023 GSG Berlin GmbH.