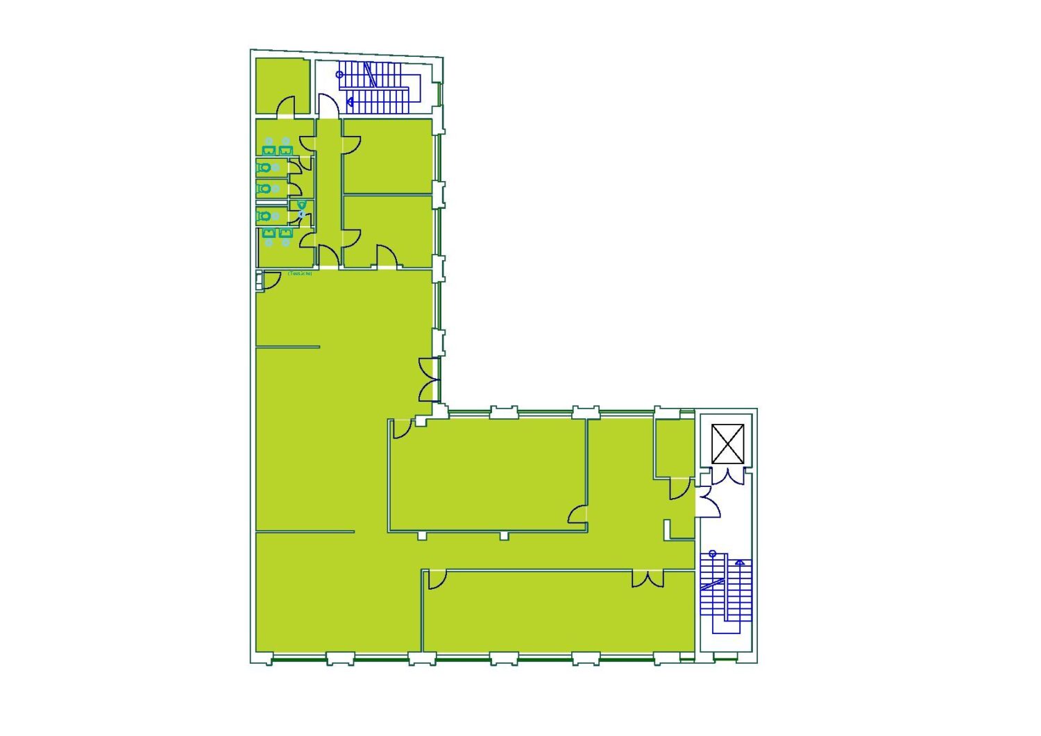
KEYFACTS:
- ca. 347,21 m²
- Personenaufzug vorhanden
- viele kleine Büros, Besprechungsräume und offene Arbeitsbereiche
- lichtdurchflutete Flächen
- WC-Anlagen (Damen/Herren getrennt)
- Digitales Wegeleitsystem in Umsetzung
- Betreuung durch festen Hausmeister
HISTORIE:
Klassische Fabriketagen mit drei bis fünf Geschossen sowie eingeschossige Werkshallen mit weitläufigem Innenbereich: Das war die Maßgabe für die Bauten, die im Auftrag des Lebensmittelfilialbetriebs Hermann Meyer AG in Berlin-Wedding errichtet wurden. In den 50er Jahren kam ein Neubau der Architekten Schwebes und Schossberger hinzu. In den 90er Jahren wurde das Areal schließlich nochmals durch ein Gebäude erweitert.
Heute ist das Bauensemble ein denkmalgeschützter Gewerbehof der GSG mit insgesamt 40 Mieteinheiten, in denen sich Dienstleister, Handwerker und Techniker aller Couleur niedergelassen haben. Die Räumlichkeiten mit 63 bis 1.050 Quadratmetern sind vielseitig nutzbar - sei es als Geschäftsraum, Büro- oder Produktionsfläche sowie Werkstätte.
Bürofläche in Berlin-Wedding – 347 m² im GSG-Gewerbehof Wattstraße 10–13 zu mieten
Verkehrsgünstig gelegen und in der Nähe des Technologie- und Innovationsparks Berlin (TIB) mit seinen zukunftsweisenden Disziplinen Wissenschaft, Forschung und modernster Technik dieser GSG-HOF in der Wattstraße in Berlin-Wedding befindet sich in einem für Unternehmen äußerst attraktiven Umfeld.
Der U-Bahnhof Voltastraße und der S-Bahnhof Humboldthain sind fußläufig in ca. 5 Minuten erreichbar. Der Fernbahnhof Gesundbrunnen liegt vom GSG-HOF nur wenige Autominuten entfernt. Sehr gute Einkaufsmöglichkeiten bietet das Gesundbrunnen-Center am nördlichen Ende der Brunnenstraße. Kleinere Supermärkte, Gastronomie und Imbisse befinden sich ebenso entlang der Brunnenstraße.
Der U-Bahnhof Voltastraße und der S-Bahnhof Humboldthain sind fußläufig in ca. 5 Minuten erreichbar. Der Fernbahnhof Gesundbrunnen liegt vom GSG-HOF nur wenige Autominuten entfernt. Sehr gute Einkaufsmöglichkeiten bietet das Gesundbrunnen-Center am nördlichen Ende der Brunnenstraße. Kleinere Supermärkte, Gastronomie und Imbisse befinden sich ebenso entlang der Brunnenstraße.
Ausstattung
Die Immobilie verfügt über sieben Aufgänge. Alle Mieter haben einen Zugang zu einem der insgesamt sieben Lastenaufzüge. Und die zwei eingeschossigen Werkshallen im Innenhof mit weitläufiger Verkehrsfläche eignen sich vor allem als Werkstätten. Fast alle Büros, Werkstätten und Produktionsräume sind mit separaten Damen und Herrentoiletten ausgerüstet.Sonstiges
Vereinbaren Sie noch heute einen Besichtigungstermin mit uns. Wir freuen uns auf Ihren Anruf. Weitere Angebote auf Nachfrage. Änderungen vorbehalten. Für den Inhalt des Mietverhältnisses ist allein der geschlossene Mietvertrag nebst Anlagen verbindlich.Foto: Anastasiades / GSG Berlin
Tour anfragen
Planen Sie mit uns eine Tour durch den Gewerbehof.
Nicht das, was Sie suchen?
Entdecken Sie noch mehr Büros in Berlin Mitte